いろどりアイタウン 岐阜市中西郷2丁目 1号棟(売買 新築一戸建て) | 岐阜市中西郷 | 岐阜市周辺の不動産・新築・一戸建て・マンション・土地情報はセンチュリー21ホンクメ

いろどりアイタウン 岐阜市中西郷2丁目 1号棟 | 岐阜市中西郷の不動産物件

・敷地は69坪超で整形地で、駐車場は3台分のスペースがあります。・南向きで前面道路は6m以上の、陽当たり良好な立地です。南庭も付いています。
【新築一戸建て】 NEW! 新築 駐車場あり
価格 2,500万円 (税込)
樽見鉄道 糸貫駅 徒歩38分
スマホ表示
物件コード:086501-9534
所在地 建物面積
土地面積
間取り 築年月
岐阜県岐阜市中西郷 103.91m2
230.85m2
4LDK 2026/07

物件基本情報

▲完成の全体イメージはこんな感じです。
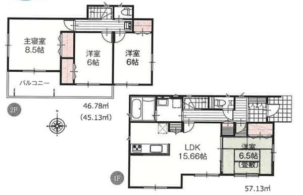
▲全居室6帖以上で4LDKの間取りです。
物件種目 新築一戸建て
物件名称 いろどりアイタウン 岐阜市中西郷2丁目 1号棟
所在地 岐阜県岐阜市中西郷
交通
樽見鉄道 糸貫駅 徒歩38分
階数 2階建
建物構造 木造
建ぺい率/容積率 60% / 200%
駐車場 有 (3台)
学校 西郷小学校 / 岐北中学校
設備・条件
  • ガス:個別プロパン
  • 汚水:公共下水
  • 水道:公営水道
  • 雑排水:公共下水
  • フローリング
  • システムキッチン
  • シャンプードレッサー
  • 追い焚き
  • 洗浄便座
  • ガスコンロ
  • 床下収納
  • TVドアホン
  • コンロ三口
  • カウンターキッチン
  • 浴室乾燥機
  • バルコニー
  • 日当り良好
  • 食器洗乾燥機
  • 浄水器
  • 浴室1坪以上
  • トイレ2ヶ所
  • 複層ガラス
  • 耐震構造
  • フラット35・S適合証明書
  • 建築確認完了検査済証
センチュリー21ホンクメ
0120-72-1264
携帯電話・PHSもご利用になれます。

画像・写真

  • 区画図はこんな感じになっています。
    区画図はこんな感じになっています。
  • 南前面道路から外観を見るとこんな感じ
    南前面道路から外観を見るとこんな感じ
  • 現在更地の段階で7月の完成予定です。
    現在更地の段階で7月の完成予定です。
  • コチラは別アングルからの外観写真です。
    コチラは別アングルからの外観写真です。
  • 現在更地の段階で7月の完成予定です。
    現在更地の段階で7月の完成予定です。
  • 現在更地の段階で7月の完成予定です。
    現在更地の段階で7月の完成予定です。
  • 地盤は20年間保証が付いていて安心です。
    地盤は20年間保証が付いていて安心です。
  • 建物は最長で35年保証付です。(条件有)
    建物は最長で35年保証付です。(条件有)
  • 駐車場は4台分のスペースがあります。
    駐車場は4台分のスペースがあります。
  • TVモニターホンで来訪者をチェック。
    TVモニターホンで来訪者をチェック。
  • リビングを見渡せるカウンターキッチン。
    リビングを見渡せるカウンターキッチン。
  • 食洗器も付いたシステムキッチンです。
    食洗器も付いたシステムキッチンです。
  • 洗面台はシャンプードレッサー仕様です。
    洗面台はシャンプードレッサー仕様です。
  • 浴室暖房、乾燥、換気機能付で快適です♪
    浴室暖房、乾燥、換気機能付で快適です♪
  • 全居室複層ガラスを採用しています。
    全居室複層ガラスを採用しています。

周辺地図

地図を表示中...
ストリートビュー未対応エリアです。

物件詳細情報

物件用途 居住用 地目 宅地
間取り詳細 - 都市計画 市街化区域
建物向き 用途地域 第一種住居地域
土地面積基準 公簿 接道 公道 南 幅員6m
土地権利 所有権 私道面積 -
借地条件 - 道路位置指定 -
地代 - 不適合接道 -
建築確認番号 第R07SHC123000号 セットバック -
現況 建築中 国土法届出 不要
引渡時期 相談 取引態様 一般
設備その他 -
特記事項 中西郷地区地区整備計画区域
備考 ・敷地は69坪超で整形地で、駐車場は3台分のスペースがあります。
公開日 2026/05/09 広告有効期限 2026/06/09
担当者 青木 孝司
電話でお問い合わせ
センチュリー21ホンクメ 店舗情報
[所在地] 岐阜県岐阜市松原町17
[営業時間] 09:00~18:00
[担当] 青木 孝司
0120-72-1264
携帯電話・PHSもご利用になれます。