岐阜市桜木町1丁目 A棟(売買 新築一戸建て) | 岐阜市桜木町 | 岐阜市周辺の不動産・新築・一戸建て・マンション・土地情報はセンチュリー21ホンクメ

岐阜市桜木町1丁目 A棟 | 岐阜市桜木町の不動産物件

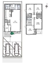
・長期優良認定住宅で吹付ウレタン断熱や遮熱シートなども採用されています。・南向きで陽当たり良好な20.31帖のリビング、天井高も2.7mあり開放的です。
【新築一戸建て】 NEW! 新築 駐車場あり
価格 3,280万円 (税込)
東海道本線 岐阜駅 徒歩23分
スマホ表示
物件コード:086501-9571
所在地 建物面積
土地面積
間取り 築年月
岐阜県岐阜市桜木町 105.58m2
132.25m2
4LDK 2026/05

物件基本情報

▲上棟しました。完成は5月頃の予定です。
▲ファミリー層にピッタリな4LDKの間取。
物件種目 新築一戸建て
物件名称 岐阜市桜木町1丁目 A棟
所在地 岐阜県岐阜市桜木町
交通
東海道本線 岐阜駅 徒歩23分
階数 2階建
建物構造 木造
建ぺい率/容積率 60% / 200%
駐車場 有 (2台)
学校 明郷小学校 / 岐阜中央中学校
設備・条件
  • ガス:都市ガス
  • 汚水:公共下水
  • 水道:公営水道
  • 雑排水:公共下水
  • システムキッチン
  • シャンプードレッサー
  • 追い焚き
  • 洗浄便座
  • ガスコンロ
  • Wクローゼット
  • 床下収納
  • TVドアホン
  • コンロ三口
  • カウンターキッチン
  • バルコニー
  • 日当り良好
  • 長期優良住宅
  • 食器洗乾燥機
  • 浴室1坪以上
  • トイレ2ヶ所
  • 複層ガラス
  • 耐震構造
  • 建築確認完了検査済証
センチュリー21ホンクメ
0120-72-1264
携帯電話・PHSもご利用になれます。

画像・写真

  • コチラは建物北側から見た外観になります。
    コチラは建物北側から見た外観になります。
  • コチラが完成イメージパースとなります。
    コチラが完成イメージパースとなります。
  • 今回はA棟のみを分譲住宅でのご紹介です。
    今回はA棟のみを分譲住宅でのご紹介です。
  • 南前面道路から外観を見るとこんな感じ
    南前面道路から外観を見るとこんな感じ
  • スーパーまでは徒歩約6分の距離です。
    スーパーまでは徒歩約6分の距離です。
  • 小学校までは徒歩約8分の距離です。
    小学校までは徒歩約8分の距離です。
  • 駐車場は並列2台分のスペースがあります。
    駐車場は並列2台分のスペースがあります。
  • TVモニターホンで来訪者をチェック。
    TVモニターホンで来訪者をチェック。
  • リビングを見渡せるカウンターキッチン。
    リビングを見渡せるカウンターキッチン。
  • 食洗器も付いたシステムキッチンです。
    食洗器も付いたシステムキッチンです。
  • トイレは2ヵ所あるのでとても便利ですね。
    トイレは2ヵ所あるのでとても便利ですね。
  • 洗面台はシャンプードレッサー仕様です。
    洗面台はシャンプードレッサー仕様です。
  • 全居室複層ガラスを採用しています。
    全居室複層ガラスを採用しています。
  • 2階の2居室にWICが付いています。
    2階の2居室にWICが付いています。

周辺地図

地図を表示中...
ストリートビュー未対応エリアです。

物件詳細情報

物件用途 居住用 地目 宅地
間取り詳細 - 都市計画 市街化区域
建物向き - 用途地域 第二種住居地域
土地面積基準 公簿 接道 公道 南 幅員3.9m
土地権利 所有権 私道面積 -
借地条件 - 道路位置指定 -
地代 - 不適合接道 -
建築確認番号 第KS125-0420-60333号 セットバック -
現況 建築中 国土法届出 不要
引渡時期 相談 取引態様 一般
設備その他 -
特記事項 法22条区域
備考 ・長期優良認定住宅で吹付ウレタン断熱や遮熱シートなども採用されています。
公開日 2026/04/30 広告有効期限 2026/05/31
担当者 青木 孝司
電話でお問い合わせ
センチュリー21ホンクメ 店舗情報
[所在地] 岐阜県岐阜市松原町17
[営業時間] 09:00~18:00
[担当] 青木 孝司
0120-72-1264
携帯電話・PHSもご利用になれます。